ЗИМНЯЯ ВСТРЕЧА 26
Форум самогонщиков Сайт Барахолка Магазин ЗИМНЯЯ ВСТРЕЧА 26

Влияние подаваемой мощности и др., факторов на разделительную способность колонн

Форум самогонщиков Вопросы ректификаторов
1 ... 778 779 780 781 782 783 784 ... 791 781
Dry Gin Профессор Котобург 14.9K 2.3K
Отв.15600  06 Янв. 26, 10:50
остальные смотрят на это и думают: что за пи.децdee, 06 Янв. 26, 10:17
С каких пор учёного стало волновать мнение простых людей? Наука - не публичная политика, в ней другие критерии☝️
dee Научный сотрудник Минск 9.9K 2.5K
Отв.15601  06 Янв. 26, 11:03 (через 14 мин)
с тех пор как на двадцатилетнем строительном форуме зарегистрировано 30000 людей с онлайном 5000, даже если строит что-то другое, покупает готовое под ключ или обсуждает сорта веников, но если кто пробует сам - так не делал, несмотря на всю творческую активность неофитов
Dry Gin Профессор Котобург 14.9K 2.3K
Отв.15602  06 Янв. 26, 11:13 (через 10 мин)
А вот скоммуниздили на заводе кирпича 0.026% с каждого второго кирпича. А строители построили, они ж не знали. И дом получился немножко кривоватым. Не беда🙂
dee Научный сотрудник Минск 9.9K 2.5K
Отв.15603  06 Янв. 26, 11:15 (через 3 мин)
когда сруб с габаритом 5 метров получается на 1мм длиннее это просто идеал строительства, некоторые считают на пять а получают семь и не могут разобраться почему, особо одаренные три ступеньки на крыльце посчитать не могут, пятый год смотрят на чертеж и рассказывают что это практические супеньки а теоретических не бывает
DIMA1965 Профессор новый иерусалим 3.8K 745
Отв.15604  06 Янв. 26, 11:27 (через 12 мин)
Клоунада...
Пора переносить во флудилку.
DIMA1965 Профессор новый иерусалим 3.8K 745
Отв.15605  06 Янв. 26, 11:30 (через 3 мин)
колонна 2" высотой 1 метр на мочалках и рассчитанная с помощью ЭВМ , имеет
Потребляемую мощность 1000 Ватт
Производительность 50 мл в час
Разделительную способность 14ТТ
ВЭТС насадки 7,1см .Янн, 06 Янв. 26, 08:45

ЯННЧИК, а если отбирать 700 мл в час, какие будут параметры и свойства этой твоей колонки?
Что твоя ЭВМ насчитает?
dee Научный сотрудник Минск 9.9K 2.5K
Отв.15606  06 Янв. 26, 11:45 (через 16 мин)
Откуда вы взяли дроби?Янн, 05 Янв. 26, 23:00
деление дробным может быть, не понятно ? 5см насадки/10 ВЭТТ=0,5 ТТ как мог раскрасил мурзику фломастерами
изображение_2026-01-06_114405205.png
изображение_2026-01-06_114405205. Влияние подаваемой мощности и др., факторов на разделительную способность колонн. Вопросы ректификаторов.

еще раз перечитывай
наливаем в куб допустим 1%, пар идет допустим 10%, на одной единственной ФТ (или на 5см насадки с ВЭТС 10см) получаем укрепление 32% при работе на себя, плюс-минус, но точно больше 30% и меньше 35%, это легко можно измерять любым говноаэрометром, между 10% и 55% разница самая большая. Внимание вопрос: сколько ТТ в колонне ?dee, 06 Янв. 26, 08:56
TVM73 Доктор наук Серпухов 602 56
Отв.15607  06 Янв. 26, 11:52 (через 8 мин)
Самим то не смешно ?
Смотрите как надо и учитесь ,показываю вам мастер класс в расчёте и проектировании домашней ректификационной колонны
Пошли купили царгу 2" высотой 1 метр
Пошли купили нержовых мочалок штук 15 , с запасом.
Напихали их в эту царгу.
поставили царгу с мочалками на куб ,ну и далее как обычно УО и дефлегматор.
Железо гением ума спроектировано и собрано ,но не имеем тактико технических данных для сравнения и отчетности. Не порядок.
Тащим ЭВМ и измерительные прибора . Термометр ,ареометр, сикундомер, измерительную колбу ну и для пущей важности барометр. Думаю хватит.
Наливаем в куб ССЖ примерно 30% можно и 10% и 50% ,не важно.
Запускаем агрегат.
Работа на себя час, потом открываем медленно отбор ФЧ=100 это примерно отбор 50 мл на 1кВт мощности .
Отбираем продукт для измерения спиртуозности. При 20* при давлении 760мм ртутного столба , наш АСП-1 показал 96,5% Включаем ЭВМ, или рисуем ступени на кривой равновесия фаз . Начальная спиртуозность 30 % (Виктрыч для тебя ,в кубе не в колонне ) на выходе имеем 96,5% ФЧ =100 ( бесконечность)
ЭВМ выдает 14 ТТ И так определили итоговую цифру для нашей колонны . Забиваем ее в отчё.
Высоту знаем 1 метр. Конструктора требуют ВЭТС насадки.
Забиваем данные в ЭВМ 1000мм : 14 ТТ =71,4...... мм
И так, нашим конструкторского бюро была спроектированная колонна 2" высотой 1 метр на мочалках и рассчитанная с помощью ЭВМ , имеет
Потребляемую мощность 1000 Ватт
Производительность 50 мл в час
Разделительную способность 14ТТ
ВЭТС насадки 7,1см .Янн, 06 Янв. 26, 08:45
Меня терзают смутные сомнения в правильности полученой цифры.
14 ТТЯнн, 06 Янв. 26, 08:45
dee Научный сотрудник Минск 9.9K 2.5K
Отв.15608  06 Янв. 26, 11:58 (через 6 мин)
Меня терзают смутные сомнения в правильности полученой цифры.TVM73, 06 Янв. 26, 11:52
дело не в правильных цифрах а в самом подходе с ареометром, если он показывает 96,4 это 10ТТ ±2ТТ в лучшем случае, если 96,5 это 14ТТ ±3ТТ, если 96,6 это 20ТТ ±4ТТ, среднего не дано. так ведь нет, с какого то перепугу Янн вломил в калькулятор 96,500000000 и думает что ровно 14,00000000000 ТТ калькулятор дробей не показывает поэтому делает вывод что их не существует в природе ))) а там плюс-минус три железнодорожных состава
сообщение удалено
Янн Профессор Пушкино 7.3K 1.1K
Отв.15609  06 Янв. 26, 12:21 (через 23 мин)
Наша ТТ не кирпич это скорее всего бублик ,фигура в виде тора , внутри бублика пространство , дырка в котором достигается полное равновесие.В колонне есть слой насадки ,на котором достигается равновесие =1ТТ это наша ВЭТС.Откуси от бублика часть ,нарушается целостность системы и она перестает существовать и нет тебе не бублика, не дырки ,пространства где достигается равновесие .В колонне уберем часть насадки и уже нет той высоты для достижения равновесия и значит нет ТТ ,вот как то так . Бублик это наша ТТ которая предполагает по условию задачи целостность неделимость .
santax1 Профессор Где-то 2.2K 557
Отв.15610  06 Янв. 26, 12:26 (через 6 мин)
Наша ТТ не кирпич это скорее всего бублик ,фигура в виде тора ,Янн, 06 Янв. 26, 12:21
Все, Янн от платино-иридиевого неделимого эталона метра из палаты мер и весов перешел к рулетке.
Влияние подаваемой мощности и др
Влияние подаваемой мощности и др., факторов на разделительную способность колонн. Вопросы ректификаторов.
dee Научный сотрудник Минск 9.9K 2.5K
Отв.15611  06 Янв. 26, 12:28 (через 3 мин)
Наша ТТ не кирпич это скорее всего бублик ,фигура в виде тора , внутри бублика пространство , дырка в котором достигается полное равновесиеЯнн, 06 Янв. 26, 12:21
некисло тебя после новогодних накрыло ))) твои выводы у меня больше всего ассоциируются со взрывом петарды в салате оливье ))) бах какая то уйня, вроде смешно, но и разгребать это очень долго
DIMA1965 Профессор новый иерусалим 3.8K 745
Отв.15612  06 Янв. 26, 12:30 (через 3 мин)
Бублик это наша ТТ которая предполагает по условию задачи целостность неделимость .Янн, 06 Янв. 26, 12:21

Покажите ему ленту Мёбиуса !! 🤣🤣🤣

Вот уж будет ТТ так ТТ.
Янн Профессор Пушкино 7.3K 1.1K
Отв.15613  06 Янв. 26, 13:03 (через 33 мин)
Денис вопрос не задал ,тогда Дима ты первый по очереди.
между 10% и 55% разница самая большая.dee, 06 Янв. 26, 08:56
№1 От изменения спиртуозности в кубе с 10% до 50% при отборе дистиллята при ФЧ=4 количество ТТ неизменно.Согласен?
не понятно почему число ТТ в колонне не меняется.dee, 06 Янв. 26, 09:26
№2 Меняется от нагрузки и условий. ВЭТС величина в колонне переменная . Согласен ?
вывалив к чему-то расчет ВЭТС по готовой колонне.santax1, 06 Янв. 26, 09:34

№3 Как ты собрался проектировать колонну не зная ВЭТС насадки. Попробуй .Вот тебе вводные данные У меня есть ящик нержовых гаек М4 . Вопрос какой высоты надо насыпать гаек, что бы получить на выходе целевой продукт 96,5% в кубе 30%, мощности 1кВт, ФЧ 100 диаметр колонны 2" Жду ответа.
это не проектирование, это строительствоdee, 06 Янв. 26, 09:36

№4 Что бы что то рассчитать и спроектировать нужны справочные данные . Иди к Сантаксу помоги с чертежами.
Влияние подаваемой мощности и др
Влияние подаваемой мощности и др., факторов на разделительную способность колонн. Вопросы ректификаторов.

Меня терзают смутные сомнения в правильности полученой цифры.TVM73, 06 Янв. 26, 11:52

№5 Сомневаешься ,представь свои, правильные
если 96,5 это 14ТТ ±3ТТ,dee, 06 Янв. 26, 11:58

№6 Вот видишь ты и сам понимаешь что количество ТТ в колонне от условий переменно. Потому что ВЭТС есть величина переменная, а не потому что кривые руки или приборы имеют заводскую погрешность Согласен?
Вот пока всё.Надеюсь теперь вопросов по с проектируемой колонной нет.
Влияние подаваемой мощности и др
Влияние подаваемой мощности и др., факторов на разделительную способность колонн. Вопросы ректификаторов.
TVM73 Доктор наук Серпухов 602 56
Отв.15614  06 Янв. 26, 13:33 (через 31 мин)
№5 Сомневаешься ,представь свои, правильныеЯнн, 06 Янв. 26, 13:03
Сомневаюсь? Да.
Представить? Нет.

Добавлено через 14мин.:

Поясни.
%Янн, 06 Янв. 26, 08:45
Какие проценты?
dee Научный сотрудник Минск 9.9K 2.5K
Отв.15615  06 Янв. 26, 14:00 (через 28 мин)
№6 Вот видишь ты и сам понимаешь что количество ТТ в колонне от условий переменно.Янн, 06 Янв. 26, 13:03
не от условий а от твоего кривого ареометра, хочешь увидеть пол ТТ - поставь одну ФТ и залей смесь 1%

Добавлено через 2мин.:

№5 Сомневаешься ,представь свои, правильныеЯнн, 06 Янв. 26, 13:03
для мочалок и метровой трубы ? зачем ? мои расчеты кубовой рекколонны я выкладывал - рулетка, потолки, терпение и мелкая СПН. Тут некоторые не могли понять как можно в 3" трубу НБК вдувать только 700Вт ))) всё можно, ребя, если просчитано и обосновано ))) и что самое кайфовое - нормально работает с первого же пинка
Dry Gin Профессор Котобург 14.9K 2.3K
Отв.15616  06 Янв. 26, 14:43 (через 43 мин)
Тут некоторые не могли понять как можно в 3" трубу НБК вдувать только 700Втdee, 06 Янв. 26, 14:00
Как - понятно вроде. А вот зачем - вот это непонятно🙂
Янн Профессор Пушкино 7.3K 1.1K
Отв.15617  06 Янв. 26, 15:02 (через 20 мин)
Сомневаюсь? Да.
Представить? Нет.TVM73, 06 Янв. 26, 13:33
Понятно с вами .Не знаю на поспорю. Так тоже можно .
Какие проценты?TVM73, 06 Янв. 26, 13:33
Не лопни, посмотри на ареометр .Там оно это есть. Ой извини
Влияние подаваемой мощности и др
Влияние подаваемой мощности и др., факторов на разделительную способность колонн. Вопросы ректификаторов.
.У вас там лабораторные приборы , в продаже АСП-1 там в объёмных %

для мочалок и метровой трубы ? зачем ?dee, 06 Янв. 26, 14:00
Вопрос был к "конструктору" . К тебе был вопрос №1
№1 От изменения спиртуозности в кубе с 10% до 50% при отборе дистиллята при ФЧ=4 количество ТТ неизменно.Согласен?Янн, 06 Янв. 26, 13:03
Ты не ответил

№2 Меняется от нагрузки и условий. ВЭТС величина в колонне переменная . Согласен ?Янн, 06 Янв. 26, 13:03
не от условий а от твоего кривого ареометра,dee, 06 Янв. 26, 14:00
Дима, прекрати.Не мой уровень тебя мордой тыкать. ВЭТС переменна
ВЭТС от скорости.png
ВЭТС от скорости. Влияние подаваемой мощности и др., факторов на разделительную способность колонн. Вопросы ректификаторов.
ВЭТС от нагрузки.jpg
ВЭТС от нагрузки. Влияние подаваемой мощности и др., факторов на разделительную способность колонн. Вопросы ректификаторов.
У Стабникова посмотри.
№4 Что бы что то рассчитать и спроектировать нужны справочные данные .Янн, 06 Янв. 26, 13:03
Расчёт ВЭТС.jpg
Расчёт ВЭТС. Влияние подаваемой мощности и др., факторов на разделительную способность колонн. Вопросы ректификаторов.
Как видим математически ни как . Вот я тебе и узнал ВЭТС для мочалок. Ну а ответом на вопрос №5 ты подтвердил что количество ТТ и соответственно ВЭТС в зависимости от условий переменно. За это я тебя и уважаю ,ты всегда непредвзято относишься к цифрам, и вольно или не вольно подтверждаешь мои мысли. Спасибо
Влияние подаваемой мощности и др
Влияние подаваемой мощности и др., факторов на разделительную способность колонн. Вопросы ректификаторов.
сообщение удалено
santax1 Профессор Где-то 2.2K 557
Отв.15618  06 Янв. 26, 15:32 (через 30 мин)
ВЭТС переменна У Стабникова посмотри.Янн, 06 Янв. 26, 15:02
Круто: скорость пара меняется от 0,2 до 1,8 (в 9 раз), а ВЭТС (для 2-ой насадки) только от 20 до 25 (в 1,25 раза). Как быть с твоим утверждением, что при изменении флегмового числа с 4-х до бесконечности ( отбор меняется всего лишь от 20% до 0% от пара), ВЭТС уменьшается на порядок?
dee Научный сотрудник Минск 9.9K 2.5K
Отв.15619  06 Янв. 26, 15:36 (через 5 мин)
Не мой уровень тебя мордой тыкать. ВЭТС переменнаЯнн, 06 Янв. 26, 15:02
конечно не твой уровень, ты не можешь понять что НАГРУЗА это не ФЛЕГМОВОЕ ЧИСЛО ))) ты просто ху.ню пишешь дальше, без всякой оглядки что тебя постоянно поправляют

Как видим математически ни как .Янн, 06 Янв. 26, 15:02
математически рассчитать ВЭТС это не высоту на укрепление разделить, Янн, математика гораздо сложнее, особенно если ты не понимаешь даже что такое дроби, вот тебе не точная, примерная формула, которая описывает ситуацию в колонне. Мало того, там даже ФЧ есть, я подсказываю, только ты настолько тупой что всё равно не поймешь где )))
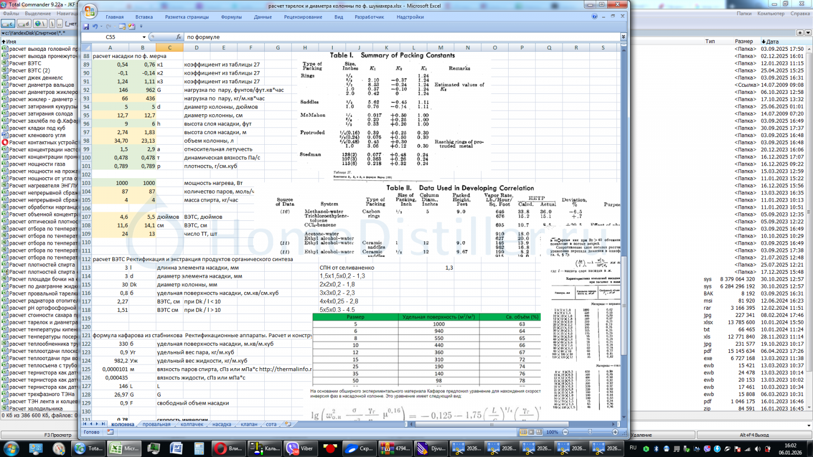
изображение_2026-01-06_154858198.png
изображение_2026-01-06_154858198. Влияние подаваемой мощности и др., факторов на разделительную способность колонн. Вопросы ректификаторов.


Добавлено через 2мин.:

вот тебе пример расчета, давай, йопта )))
изображение_2026-01-06_155100851.png
изображение_2026-01-06_155100851. Влияние подаваемой мощности и др., факторов на разделительную способность колонн. Вопросы ректификаторов.


Добавлено через 5мин.:

я с удовольствием посмотрю хера ты там насчитаешь )))
изображение_2026-01-06_160334537.png
изображение_2026-01-06_160334537. Влияние подаваемой мощности и др., факторов на разделительную способность колонн. Вопросы ректификаторов.


Добавлено через 14мин.:

но это всё Яннчик, этап проектирования КОЛОННЫ, я пока что в тебя пытаюсь затолкать теоретический расчет, смотри в конце какая фраза есть:
изображение_2026-01-06_161751292.png
изображение_2026-01-06_161751292. Влияние подаваемой мощности и др., факторов на разделительную способность колонн. Вопросы ректификаторов.

большой привет всем юмористам
Ступени переноса. Не теоретические тарелки.Dry Gin, 05 Янв. 26, 21:32
Это средняя школа или институт?Reriver, 05 Янв. 26, 23:21
Это когда Вас спустили с лестницы, и головой Вы ударяетесь не о каждую ступеньку, а только о "ступень контакта"Newocelot, 06 Янв. 26, 00:48